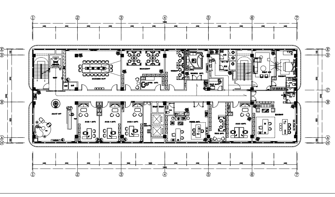
寿县鸿嘉管理咨询有限公司办公室装修工程

2025-11-04472

基础信息

项目名称:寿县鸿嘉管理咨询有限公司办公室装修工程

项目面积:2000平米

项目地址: 寿县

设计、施工单位:安徽中亿装饰建筑有限公司

模板.jpg


5c9674b5-96cb-475d-951f-76c02b6699e5.png

image.png

image.png

image.png